Modelo Cubic

VIVIENDA INDUSTRIALIZADA | MODELO CÚBIC
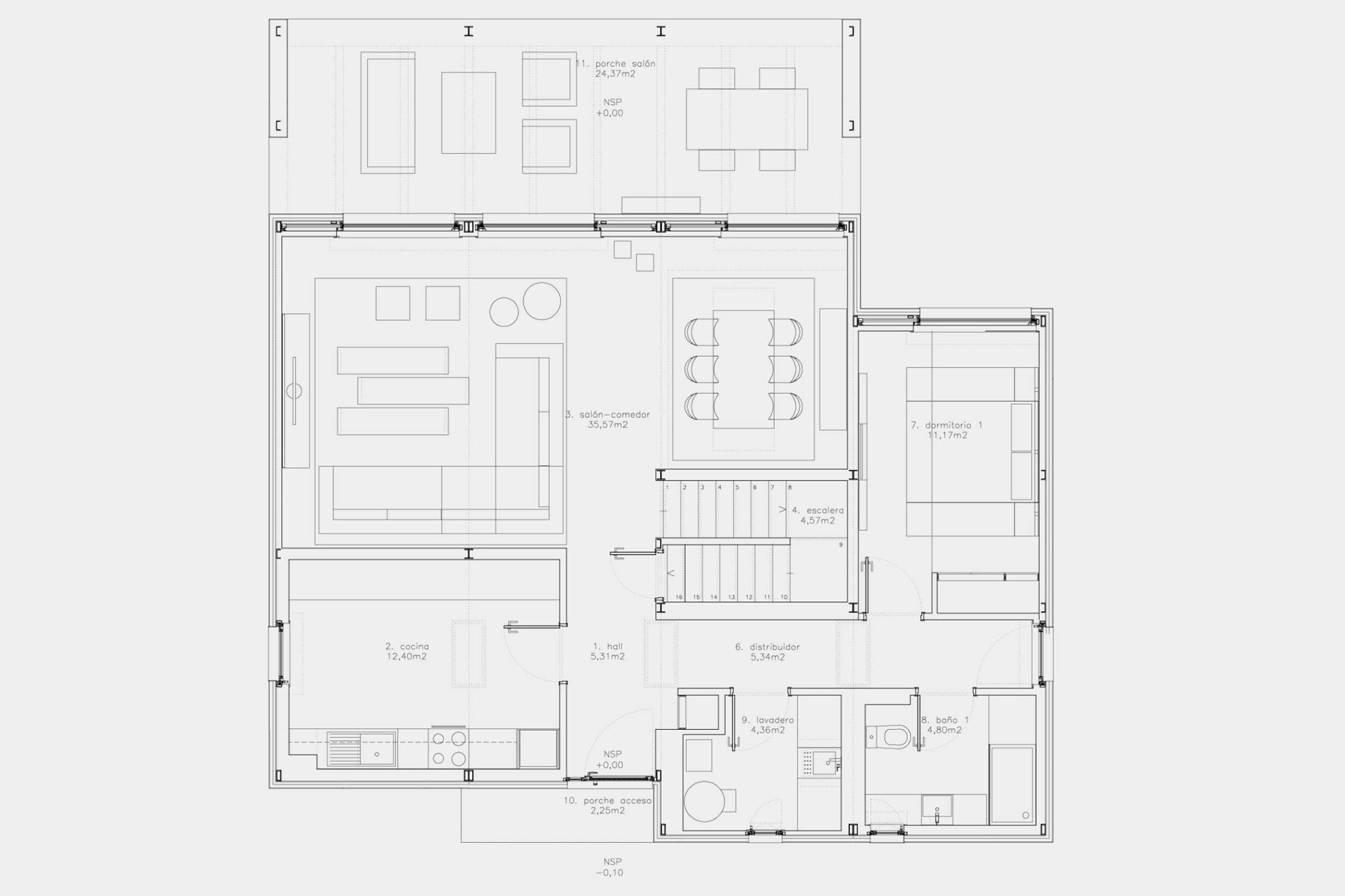
Construida con nuestro sistema de arquitectura modular

Este es uno de nuestros modelos tipo. Son diseños pensados para todo tipo de necesidades.
Se pueden añadir módulos y extras como porches, proyectos de interiorismo, lo que necesites.
Si no encuentras lo que buscas, contáctanos. Podemos hacer tu proyecto a medida.

7 GRANDES VENTAJAS DE NUESTRO SISTEMA

1 – Reducción de entre un 60% y un 75% en los plazos de ejecución
2 – Precio cerrado desde el proyecto de ejecución
3 – Control de calidad de la ejecución a nivel industrial
4 – Mayor seguridad de los operarios al realizarse la ejecución en fábrica
5 – Alto compromiso con el medio ambiente
6 – Mejora de la eficiencia energética de la construcción
7 – Uso de energías renovables

Logo A cero 2
Resumen de privacidad

Esta web utiliza cookies para que podamos ofrecerte la mejor experiencia de usuario posible. La información de las cookies se almacena en tu navegador y realiza funciones tales como reconocerte cuando vuelves a nuestra web o ayudar a nuestro equipo a comprender qué secciones de la web encuentras más interesantes y útiles.